|
|
|
||||||||||||||||||
山望むエーゲの街 |
||||||||||||||||||||
|
||||||||||||||||||||
|
||||||||||||||||||||
|
||||||||||||||||||||
|
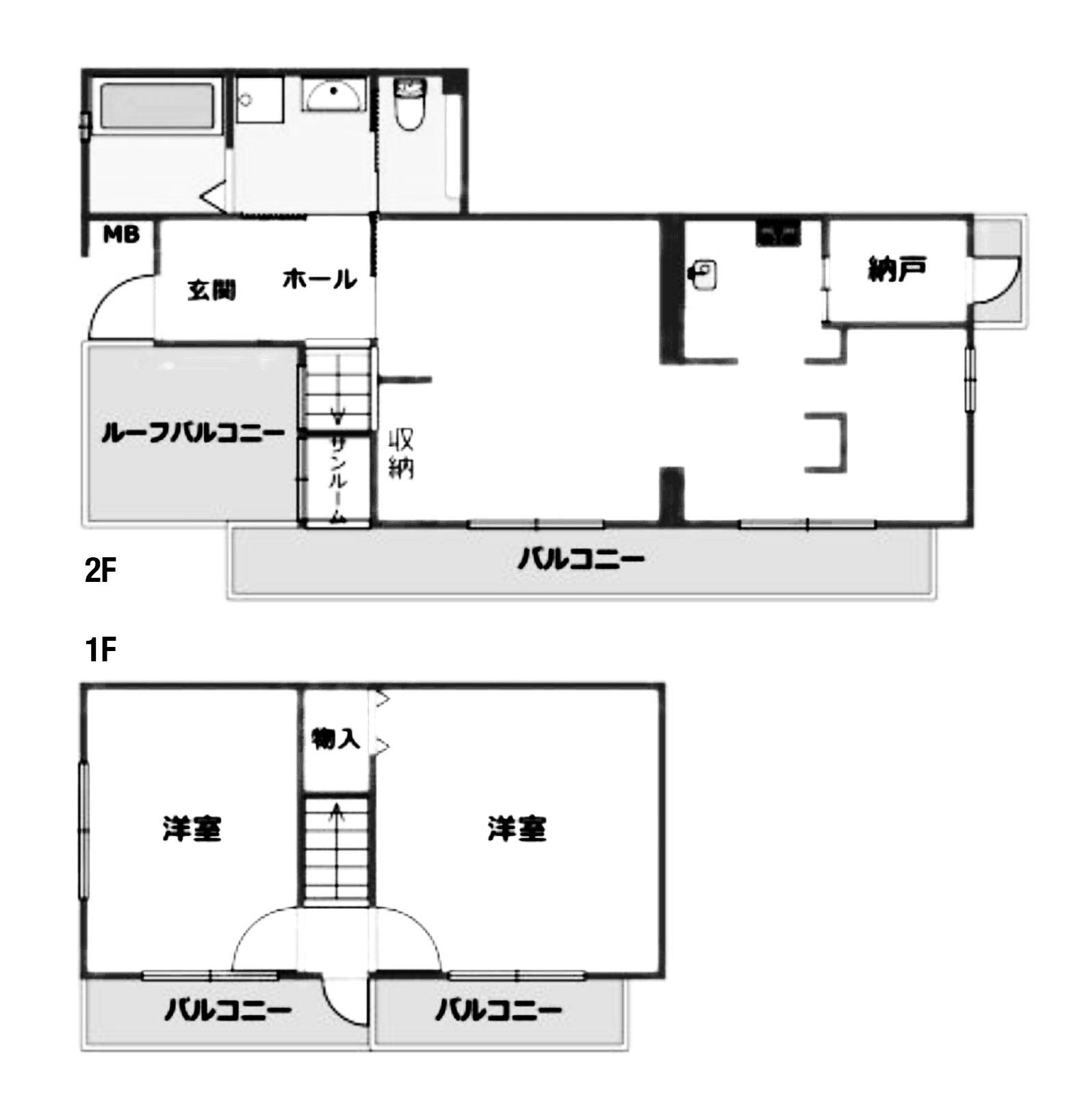
バブルの頃、JR西宮名塩駅が開通し、駅の裏手には斜行エレベーターが建設されました。その先に広がっていたのが、エーゲ海の白い街並みを思わせる有機的なフォルムの集合住宅。 高校生だった私は「未来の街」と思ったのを覚えています。 山の緑、空の青、それから白の建築物。その名も「ナシオン西宮」。もっとも、こちらは海ではなく山あいの町なんですけどね。 今回ご紹介するお部屋は、玄関からルーフバルコニーに面した2階部分を、2011年にフルリノベーションされています。 吉野杉のフローリングに珪藻土の塗り壁。空間に合わせて造作された棚やシステムキッチンなど、細やかな設えが随所に見られます。 冬の気温が低めな西宮北部という土地柄もあり、窓にはペアガラスを採用。住み心地をしっかり考えたリノベーションで、画一的なリフォームとは一線を画す個性的な仕上がりです。 引き戸や障子といった和のアクセントと、モダンなオペークガラスのドアの組み合わせも、個人的にはかなりツボでした。 1階への階段の上部に床を作って窓の開口を活かしたサンルームが設られています。そこに腰をかけて街を眺めていると、 「あら、宝塚はあの辺りかな?」 そんなことを思いながら、アイコニックなタワーマンションを見下ろす景色が広がります。 大阪梅田には最寄駅からJR福知山線丹波路快速で30分。通勤もショッピングも大阪エリアへのアクセスが良いのはやはり魅力です。 経年で味わいの出てきたフロアをワックスで定期的にメンテナンスしたり、珪藻土を少し塗り足したり。 自分で手を入れられる余白があるのも、この住まいの楽しさかもしれません。 せっかくだから、1階部分も無垢材のフロアにしてみようかな?少し剥がれのあるクロスを珪藻土クロスに変えようかしら? そんなふうに手をかけていくことで、この家への愛着はきっと揺るぎないものになっていくんじゃないかな?そんな予感がして、なんだかワクワクしてしまうのです。 |
![]() |
|
| 吉野杉のフローリングと造作家具のあるダイニング |
|
| 障子の前には腰掛けるのにぴったりの造作棚 |
|
| ダイニングの障子を開けるとルーフバルコニー |
|
| 奥にはリビング |
|
|
| >>大きな地図で見る  |
| 価格 | 1,690万円 | 専有面積 | 87.87㎡ |
| 管理費 | 12,040円 | 修繕積立金 | 14,000円 |
| 所在地 | 西宮市東山台 | ||
| 交通 | JR福知山線「西宮名塩」駅 徒歩6分 | ||
| 建物構造 | 鉄筋コンクリート造 7階建て | 所在階 | 1階 |
| 築年 | 1993年 | 土地権利 | 所有権 |
| 面積 | 都市計画 | 市街化区域 | |
| 用途地域 | 第一種中高層住居専用地域 | 建蔽率/容積率 | |
| その他費用 | 組合費:200円/ルーフバルコニー利用料:300円 | 取引態様 | 媒介 |
| 設備 | 都市ガス/上下水道/電気 | ||
| 備考 | ペット不可/管理会社:TC神鋼不動産サービス株式会社/管理形態:全部委託(日勤)/総戸数:50戸/バルコニー面積:16.71㎡/現況:空室/引渡時期:相談/2011年5月リノベーション実施(建具新調・建具枠新調、キッチン・洗面化粧台・トイレ・浴室設備新調、珪藻土塗壁、フローリング張替え)/現状有姿取引/契約不適合責任免責/成約時仲介手数料〔(税抜成約売買価額×3%+6万円)+消費税〕 /駐車場あり(権利付き駐車場1台(月額利用料無償)) | ||
| 情報修正日時 | 2026年3月15日 | 情報更新予定日 | 2026年3月29日 |
あなたにおすすめの物件


