|
|
|||||||||||||||||||
階段の先の異世界 |
||||||||||||||||||||
|
||||||||||||||||||||
|
||||||||||||||||||||
|
||||||||||||||||||||
|
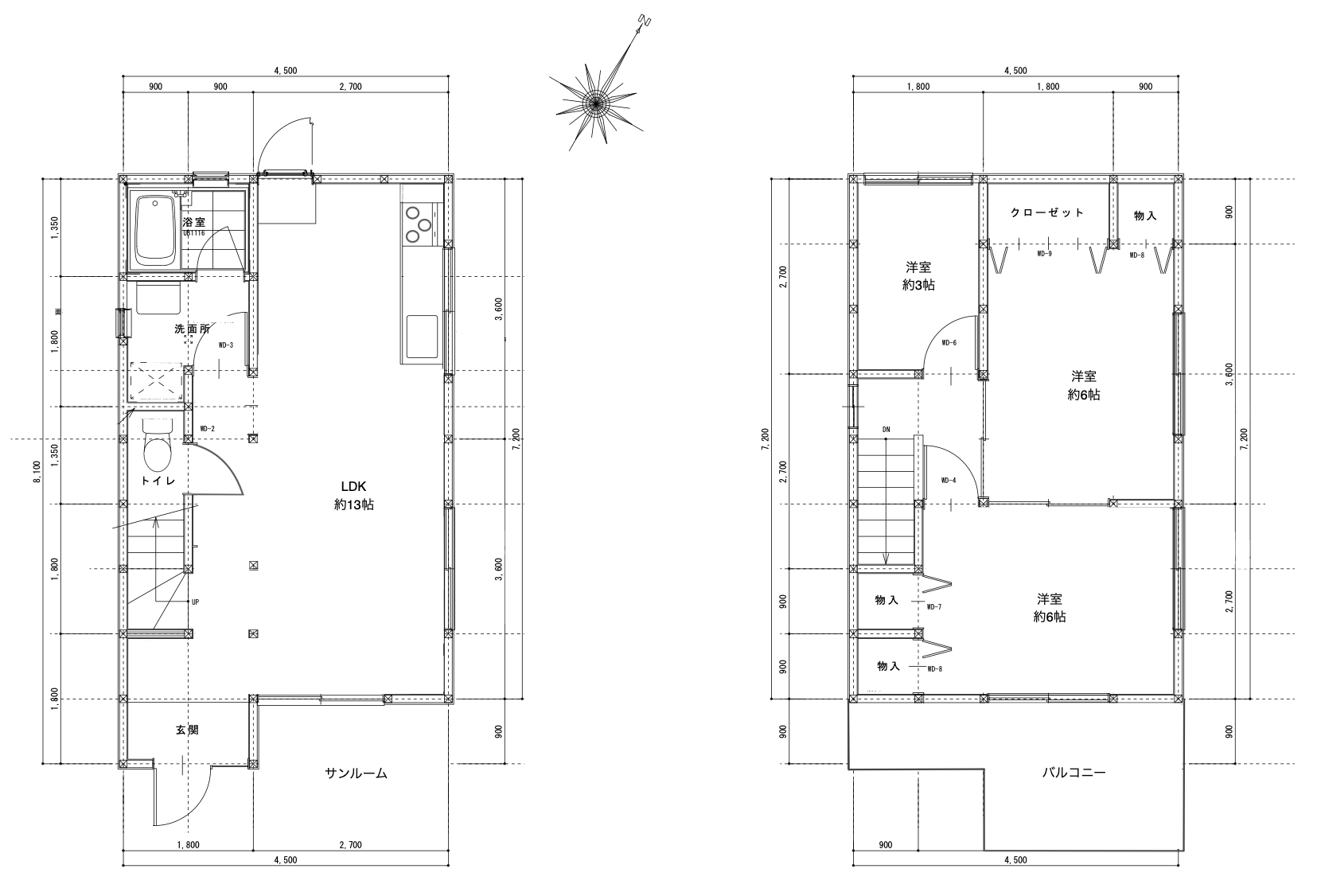
六甲に不思議な場所があるのをご存知でしょうか。 森に包まれた細い階段を抜けた先に、古家がぽつぽつと続く路地。尾道を思わせる、どこか懐かしく、それでいて非日常の空気が漂っています。 駅から徒歩圏内。それなのに、階段を一本登っただけで景色ががらりと変わり、時間の流れまで違う。ここを初めて訪れたとき、「こんな場所が阪神間にあったとは」と驚きました。 今回の物件は、そんな場所の一角に佇む戸建。 季節の花や緑を楽しめる庭、1階には陽だまりのサンルーム、2階には広いバルコニー。眺望はもちろん、夜になれば綺麗な夜景も楽しめます。現オーナーはここでBBQや晩酌を楽しみ、ビールサーバーまで設置。この家での暮らしを心から楽しまれているのが伝わってきました。 内装はリフォーム済みで、水回りも清潔感あり。 コンクリート調クロスに2階は勾配天井、梁を見せた開放感のある空間です。猫と暮らされているため壁や床に引っかき傷がある箇所や、庭下の倉庫の雨漏りなど、手直しが必要な部分もあります。 また、駐車場はなく、車の進入できない坂と階段を上がった先にありますが、その分周囲はとても静かで落ち着いた環境が魅力。いわゆるファミリー向けというより、ご夫婦や自宅兼アトリエ・事務所といった使い方がしっくりくる立地です。 一方で、現実的な課題もあります。 耐震診断の結果はあまり良くなく、補強工事が推奨されます。概算では構造壁のみで約80万円、屋根材の軽量化まで含めると約150万円ほど。 さらに擁壁にも多数の亀裂が確認されました。表面的なクラック補修程度であれば可能ですが、全面的に地盤調査から行ったうえで補強するとなると、工事も困難で現実的ではありません。 つまり、この家は“万人向け”ではありません。便利さや合理性を求める暮らしより、場所の空気感や面白さに価値を感じる人向けの物件です。 ただ、普通の住宅にピンと来ない人、現実的なことよりも、このロケーションに惹かれる人には、きっと刺さるはず。 便利ではない。完璧でもない。 でも、ここにしかない世界と景色がある。 そんな物件です。 ※現在居住中のため、内見をご希望の際は事前に調整が必要となります。 |
![]() |
|
| 2階バルコニーから街を一望。夜景も◎ |
|
| 季節の花と緑を楽しむ庭 |
|
| コンクリ調クロス×ダクトレールのLDK |
|
| そそられる、物件前の緑の小径 |
|
|
| >>大きな地図で見る  |
| 価格 | 2,490万円 | 建物面積 | 68.18㎡ |
| 管理費 | なし | 修繕積立金 | なし |
| 所在地 | 神戸市灘区寺口町 | ||
| 交通 | 阪急電鉄神戸線「六甲」駅 徒歩9分 | ||
| 建物構造 | 木造瓦葺 2階建て | 所在階 | |
| 築年 | 1968年 | 土地権利 | 所有権 |
| 敷地面積 | 102.11㎡ | 都市計画 | 市街化区域 |
| 用途地域 | 第一種低層住居専用地域 | 建蔽率/容積率 | 60%/150% |
| その他費用 | 取引態様 | 媒介 | |
| 設備 | 電気/上下水道/都市ガス | ||
| 備考 | ペット可/現況:居住中/引渡時期:相談/現状有姿取引/公簿取引/境界非明示取引/売主契約不適合責任免責/2017年フルリフォーム実施、2021年リフォーム実施(間取り変更、サンルーム設置、床・壁張り替え、スイッチ増設、洗面台交換)/庭下の倉庫天井に雨漏りあり/擁壁亀裂箇所複数あり/耐震診断結果報告書あり(補強工事推奨)/土砂災害警戒区域(急傾斜)/急傾斜地崩壊危険区域(敷地北側の一部)/令和7年度固定資産税・都市計画税:48,800円/成約時仲介手数料〔(成約売買価額×3%+6万円)+消費税〕/住居兼事務所可 | ||
| 情報修正日時 | 2025年12月12日 | 情報更新予定日 | 2026年2月24日 |
あなたにおすすめの物件


