|
|
|||||||||||||||||||
煌めく海とヴィンテージ |
||||||||||||||||||||
|
||||||||||||||||||||
|
||||||||||||||||||||
|
||||||||||||||||||||
|
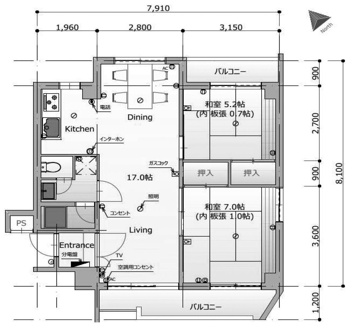
ぼーっとしばらくの間バルコニーから煌めく海面と島や街並みを見てしまいました。画像よりもずっと迫力のある眺望と気持ち良い秋風。こんなかわいいヴィンテージマンションに住んでみたいものです。 少しヨーロッパの雰囲気を感じる白い壁やRの窓、モノトーンの共用部もかわいい小ぶりなヴィンテージマンション。明石の少し丘を登ったところにあります。 玄関を入るとたっぷり日差しが入っていて明るい室内。南側の窓に近づくと青空と抜けた景色。室内からも街並みが見えますので、夜もキラキラとした街の灯りを楽しめそうです。 間取りは2LDKでリフォーム済みですので、すぐに住み始められます。お風呂はかなりコンパクト仕様。それ以外は特に不便はなさそうです。 せっかくの眺望もあるし、好みにリノベーションするのもありですね。和室の1つを質感ある無垢床に変更するだけでも印象は大きく変わりそう。 最寄り駅までは徒歩数分ですが丘地で坂道になります。とは言っても距離も短いので、慣れてしまえば毎日軽い運動程度ができて一石二鳥、と思えるのでは?JR明石駅を利用するなら電動自転車がおすすめです。 ご注意点として、敷地内に駐車場(権利)はありませんので近隣確保になります。さきほどの電動自転車があれば不便は感じなさそうですし、商業施設も充実している明石駅周辺や大蔵海岸あたりもサクッと行けます。 忙しない毎日の暮らしがこの部屋と眺望でちょっと楽しくなる。そんな印象を持ちました。価格もお手頃なのでおすすめです! *住宅ローンシミュレーション 借入額980万円/変動金利0.925%/元利金等/期間35年想定 月々支払額:約45,000円(管理費、修繕積立金込) |
![]() |
|
| エントランスの窓とレンガ階段がかわいい |
|
| エントランス |
|
| Rの窓の共用部階段 |
|
| モノトーンもいいですね |
|
|
| >>大きな地図で見る  |
| 価格 | 980万円 | 専有面積 | 58.06㎡ |
| 管理費 | 12,250円 | 修繕積立金 | 5,400円 |
| 所在地 | 明石市東野町 | ||
| 交通 |
山陽電鉄本線「大蔵谷」駅 徒歩5分 JR山陽本線「朝霧」駅 徒歩17分 |
||
| 建物構造 | 鉄筋コンクリート造 6階建て | 所在階 | 5階 |
| 築年 | 1974年 | 土地権利 | 所有権 |
| 敷地面積 | 1,433.85㎡ | 都市計画 | 市街化区域 |
| 用途地域 | 第一種中高層住居専用地域 | 建蔽率/容積率 | |
| その他費用 | 取引態様 | 媒介 | |
| 設備 | 電気/水道/ガス/トランクルーム有(1階)/敷地内駐車場の空き無/ペット相談可 | ||
| 備考 | ペット相談可/管理会社:日本ハウズイング/管理形態:全部委託/総戸数:37戸/バルコニー面積:8.77㎡/現況:空室/引渡時期:相談/土地持分:186/10000/成約時仲介手数料〔(税抜成約売買価額×3%+6万円)+消費税〕 | ||
| 情報修正日時 | 2025年11月11日 | 情報更新予定日 | 2026年3月27日 |
あなたにおすすめの物件


