![]() |
![]() |
![]() |
||||||||||||||||||
境界の豊かさ |
||||||||||||||||||||
|
||||||||||||||||||||
|
||||||||||||||||||||
|
||||||||||||||||||||
境界(いわゆる端っこ)には面白いことやものが多い印象があります。当物件もそんな見方をすると楽しめそう。 西区の押部谷町。都市に近い農村エリアの一つでのどかな田園風景が多い場所。なんと最寄り駅から徒歩4分の場所の当物件。駅近でありながらなかなかワイルドでネイチャーな環境です。 家の前には大きめの池があり木々が生い茂っています。その周囲は一般的な住宅街ですが木々に遮られて、住宅地の存在は感じられません。家の隣は農地になります。建物は経年もあり内装は全体的に修繕が必須、水回り設備も入れ替えが必要です(風呂は故障中で使用不可)。再建築もできません。そのぶんとってもリーズナブル!DIYであれこれ遊んだりしてもいい。 とはいえ駅近戸建てという立地。使い方はあなた次第。住むも良し、二拠点使いも良し、投資(賃貸)も良し。三ノ宮までは電車利用で約1時間の通勤圏内。 せっかくの田園ビューを活かした修繕をすれば面白くなりそうな印象。駐車場はありませんが、すぐ近くに月極駐車場があります。 個人的には仕事場の一つとして好きなように修繕しつつ、使う頻度がそこまでかなぁという時には賃貸に出して大家業に切り替える…みたいなイメージを持ちました。みなさんならこの物件、どう使いますか? |
![]() |
![]() |
この奥が物件。緑の小道。 |
![]() |
外観 |
![]() |
1F洋室 |
![]() |
1FDK |
|
>>大きな地図で見る  |
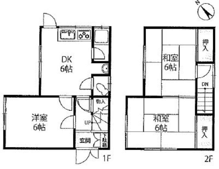
価格 | 120万円 | 建物面積 | 53.82㎡ |
管理費 | なし | 修繕積立金 | なし |
所在地 | 神戸市西区押部谷町福住 | ||
交通 | 神戸電鉄粟生線「押部谷」駅 徒歩4分 | ||
建物構造 | 木造 | 所在階 | |
築年 | 1976年 | 土地権利 | 所有権 |
敷地面積 | 67.38㎡ | 都市計画 | 市街化区域 |
用途地域 | 第一種低層住居専用地域 | 建蔽率/容積率 | 40%/80% |
その他費用 | 取引態様 | 媒介 | |
設備 | 上下水/電気/プロパンガス | ||
備考 | ペット可/地目:宅地/現況:空室/引渡時期:相談/再建築不可/公簿取引/現状有姿取引/境界非明示取引/売主契約不適合責任免責/成約時仲介手数料〔30万円)+消費税〕/1階・路面 | ||
情報修正日時 | 2025年9月14日 | 情報更新予定日 | 2025年10月20日 |
