|
|
|||||||||||||||||||
斜めテラスの家 |
||||||||||||||||||||
|
||||||||||||||||||||
|
||||||||||||||||||||
|
||||||||||||||||||||
|
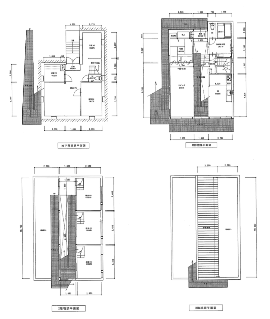
この家に一歩足を踏み入れれば、ただの住宅ではないと感じるはず。 最大の特徴は、なんといっても全長約73mに及ぶスロープ。 JIA(日本建築家協会)新人賞を受賞した本住宅は、「みちから広がる人が住むための場」をコンセプトに設計。外部から内部、そして屋上へと続くその“みち”を歩くことで、家全体がひとつの動線としてつながり、「住む」という行為そのものが新たな体験へと変わります。 リビング、キッチン、寝室といった生活空間がスロープに沿って広がり、個と公、開と閉、内部と外部が絶妙に交錯。視線が抜け、風が通り抜け、自然と身体が動き出すような、この空間ならではの“空気感”は、一度体験してみる価値があります。 シンプルでありながら計算された光と開放感。多数の窓から自然光が取り込まれ、空間に広がりを生んでいます。部屋数も豊富で、ファミリーはもちろん、住居兼事務所にも適した造り。 キッチンはマットな質感で、空間に自然と溶け込みながらも、使い勝手の良い機能性を備えています。BOSCH社製の食洗機や3口ガスコンロを備え、実用性にも優れています。そして、洗面室も特筆すべきポイント。丸型の木製ミラー、天然石の洗面ボウル、アール型の採光から差し込む光が、心地よい空間を演出しています。 細部へのこだわりも随所に。真鍮製のスイッチカバーや屋外の照明など、建築好きにはたまらないディテールが満載。 最寄りの阪急御影駅からは坂を上がりますが、駐車場も完備。JR六甲道までバスを使って通勤するのも良いかもしれません。 ただ「住む」だけでは物足りない方へ。日常にほんの少しの非日常を加えることで、「住む」ことが自体が特別な体験へと変わる。そんな、ダイナミックでのびやかな暮らしがここにはあります。 ※居住中物件につき、ご案内は事前に日程調整が必要となります。 ※ローン月々返済額:163,936円〜 (5,880万円借入/借入期間35年/元利均等/変動金利0.925%の場合) |
![]() |
|
| 多数の窓が並ぶ二面採光のLDKは、自然光がたっぷりと注ぎ込む空間 |
|
| 住宅内部の中心を貫くスロープが、空間を一体感のあるものにしています |
|
| インテリアの一部として空間に溶け込む、マットな質感の広いキッチン |
|
| ルーフバルコニーから、パノラマビューが広がる屋上へ |
|
|
| >>大きな地図で見る  |
| 価格 | 5,880万円 | 建物面積 | 156.21㎡ |
| 管理費 | なし | 修繕積立金 | なし |
| 所在地 | 神戸市東灘区御影山手 | ||
| 交通 |
阪急電鉄神戸線「御影」駅 徒歩20分 JR東海道本線「六甲道」駅 バス14分 「公園前」バス停 徒歩7分 |
||
| 建物構造 | 鉄骨・鉄筋コンクリート造陸屋根・ビニール板葺地下1階付2階建 | 所在階 | |
| 築年 | 1999年 | 土地権利 | 所有権 |
| 敷地面積 | 140.53㎡ | 都市計画 | 市街化区域 |
| 用途地域 | 第一種低層住居専用地域 | 建蔽率/容積率 | 50%/100% |
| その他費用 | 取引態様 | 媒介 | |
| 設備 | 電気/都市ガス/上下水道 | ||
| 備考 | ペット可/地目:宅地/現況:居住中/引渡時期:相談/現状有姿取引/公簿取引/売主契約不適合責任免責/2023年5月頃内装リフォーム実施/設計:中村勇大アトリエ一級建築士事務所/施工:溝口工務店/公益社団法人日本建築家協会 2001年 JIA新人賞/令和6年度固定資産税・都市計画税:208,000円/校区:御影北小学校、御影中学校/成約時仲介手数料〔(成約売買価額×3%+6万円)+消費税〕/駐車場あり | ||
| 情報修正日時 | 2025年11月10日 | 情報更新予定日 | 2026年3月30日 |
あなたにおすすめの物件


