|
|
|
||||||||||||||||||
団地リノベの現在地 |
||||||||||||||||||||
|
||||||||||||||||||||
|
||||||||||||||||||||
|
||||||||||||||||||||
|
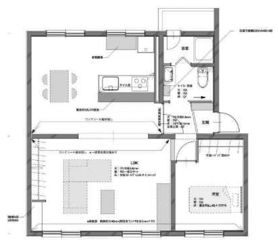
[価格改定しました!] 団地リノベもずいぶんと進化してきました。表層的なところはもちろんですが、これからも心地よく住まうためには断熱性能がとても重要。当物件は等級4相当(2025年4月以降の新築住宅で義務化される最低限の省エネ基準(次世代省エネルギー基準相当)を満たす断熱性能のこと)を実現している部屋になります。 スペックだけじゃありません。JR利用も徒歩圏内でありながら、淡路島、橋、海の3点セットビュー付き。コンクリートの躯体表しや木天井のミックス感もいい感じで現時点でのいいとこどりをできてしまう部屋なんです。 階段4階の1LDKの間取り。1〜2人向けのサイズ感です。アクセントは少し緑が入ったネイビーの建具、トイレも洗面と一体にすることで海外っぽく開放感も出ています。個人的にここはグッとくる空間でした。キッチン周りも可愛い感じに仕上がっています。 お風呂は小さめです。浴室から従来の洗濯機置き場のあった小さなバルコニーへ出ることができ、洗濯物を干せるスペースになっています。 団地にして駅まで徒歩圏内というのはかなりの推しポイントで、駅周辺には生活施設も充実しています。少し足を伸ばすとこだわりのオーガニックなスーパーや美味しいピザ屋さん、人気のタイ料理屋さんなどがあります。 あと、当団地のメリットは駐車場料金がとってもリーズナブル。2台持ちでも大きな負担にならないのではないでしょうか。 ロケーションや眺望の良さからジワジワ人気が出てきている当団地。気になる人は早めにチェックしたほうが良いですよ! *住宅ローンシミュレーション 借入額1,380万円/変動金利0.925%/元利金等/期間35年想定 月々支払額:約58,000円(管理費、修繕積立金込) |
![]() |
|
| LDK |
|
| LDK |
|
| 海と橋が見える、夜景もきれいな眺望 |
|
| LDK |
|
|
| >>大きな地図で見る  |
| 価格 | 1,280万円 | 専有面積 | 55.68㎡ |
| 管理費 | 5,100円 | 修繕積立金 | 15,000円 |
| 所在地 | 神戸市垂水区狩口台 | ||
| 交通 | JR山陽本線「朝霧」駅 徒歩11分 | ||
| 建物構造 | 鉄筋コンクリート造 5階建て | 所在階 | 4階 |
| 築年 | 1969年 | 土地権利 | 所有権 |
| 敷地面積 | 7,396.87㎡ | 都市計画 | 市街化区域 |
| 用途地域 | 第一種中高層住居専用地域 | 建蔽率/容積率 | |
| その他費用 | その他:500円 | 取引態様 | 媒介 |
| 設備 | 電気/上水道/下水道/都市ガス/駐車場:空き有<月額3,500円(2台目:5,000円>/バイク置場:有(年額1,200円)/駐輪場:有(年額600円) | ||
| 備考 | ペット不可/分譲会社:兵庫県住宅供給公社/管理会社:日本ハウズイング株式会社/管理形態:全部委託/バルコニー面積:5㎡/現況:空室/引渡時期:相談/1階南側の専用花壇(1区画)を利用可/持分100分の1//成約時仲介手数料〔(税抜成約売買価額×3%+6万円)+消費税〕/バイク置場あり/駐車場あり | ||
| 情報修正日時 | 2025年11月29日 | 情報更新予定日 | 2026年3月29日 |
あなたにおすすめの物件


