|
|
|
||||||||||||||||||||
味わう町家 |
||||||||||||||||||||||
|
||||||||||||||||||||||
|
||||||||||||||||||||||
|
||||||||||||||||||||||
|
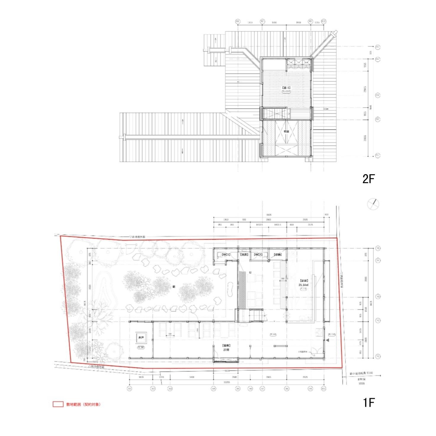
「これぞ町家」といった外観から店内へ一歩入ると、洗練された空間が広がっていました。ここで、良質な食と空間そのものを味わえるような場所として出店いただける方を募集します。 木造架構や通り土間などの伝統的な造りを残しつつ、構造補強に用いた鉄製ブレースといった現代的なマテリアルを調和させたリノベーションにより、生まれ変わった町家のご紹介です。 三田駅周辺の再開発エリアやニュータウンのイメージも強い三田市ですが、旧市街地には、実は伝統的な町家が多く残っています。本物件を手がけたのは、三田市の活性化に向けてこれまでも複数の町家再生事業を行ってきた事業者さん。近所にはイタリアンや日本料理の素敵なお店として活用されている町家が点在しています。今回は建築家とタッグを組み、新旧が融合した町家レストランへとコンバージョンされました。 土間の床からそのまま立ち上がるように設えられたモルタルの厨房ゾーン。玄関から入ると小屋裏まで吹き抜けており、奥に広がる美しい庭園まで一直線に通り土間が伸びています。この高さと奥行きの設計が、空間の豊かさをいっそう引き立てている気がしました。 町家に合わせた古家具も魅力的ですが、あえてビビッドな色の什器を取り入れることで、さらに印象的な空間になるんじゃないか、と勝手に想像が膨らみます。 三田駅からは徒歩でやや距離があるため、車での来客を想定するのがよさそう。ただし、敷地内に駐車場はないため、近隣での確保が必要となります。 この店を目的に三田を訪れる人がいる。そんな場所でありながら、地域にも愛されるカフェやレストラン、割烹などを出店いただける方を歓迎します。募集にあたっては詳細な要件や選考フローがありますので、気になる方はお問い合わせください! |
![]() |
|
| 木造架構をあらわしにした内装 |
|
| 玄関からずどーんと、高さも奥行きも広がる通り土間 |
|
| 土間から立ち上がったようなモルタルの厨房ゾーン |
|
| 小屋裏や土壁に歴史を感じる |
|
|
| >>大きな地図で見る  |
| 賃料 | 24万8,600円(税込) | 専有面積 | 98.25㎡ |
| 保証金 | 3ヶ月 | 礼金 | なし |
| 償却 | なし | 管理費 | なし |
| 所在地 | 三田市三田町 | ||
| 交通 | JR福知山線「三田」駅 徒歩10分 | ||
| 建物構造 | 木造 2階建て | 所在階 | |
| 築年 | 築年不詳 | 取引態様 | 媒介 |
| 設備 | 都市ガス/上・下水道/電気(任意)/インターネット(任意・空配管敷設)/空調機器:1階 天カセエアコン1台、ルームエアコン3台、2階 ルームエアコン1台/床暖房(1階客席全面)/トイレ2箇所 | ||
| 備考 | ペット不可/定期借家契約(期間:7~14年を想定/再契約:相談)/飲食店限定/出店者選考あり ※期日:2026年6月15日(月)まで/敷地内駐車場なし(近隣確保要)/建物面積内訳:1階 80.01㎡、2階 18.24㎡/仲介手数料要(成約賃料1ヶ月分相当額+消費税10%)/飲食店可/要火災保険契約 | ||
| 情報修正日時 | 2026年4月7日 | 情報更新予定日 | 2026年4月30日 |
あなたにおすすめの物件


