|
|
|
||||||||||||||||||||
集められた時間の先に |
||||||||||||||||||||||
|
||||||||||||||||||||||
|
||||||||||||||||||||||
|
||||||||||||||||||||||
|
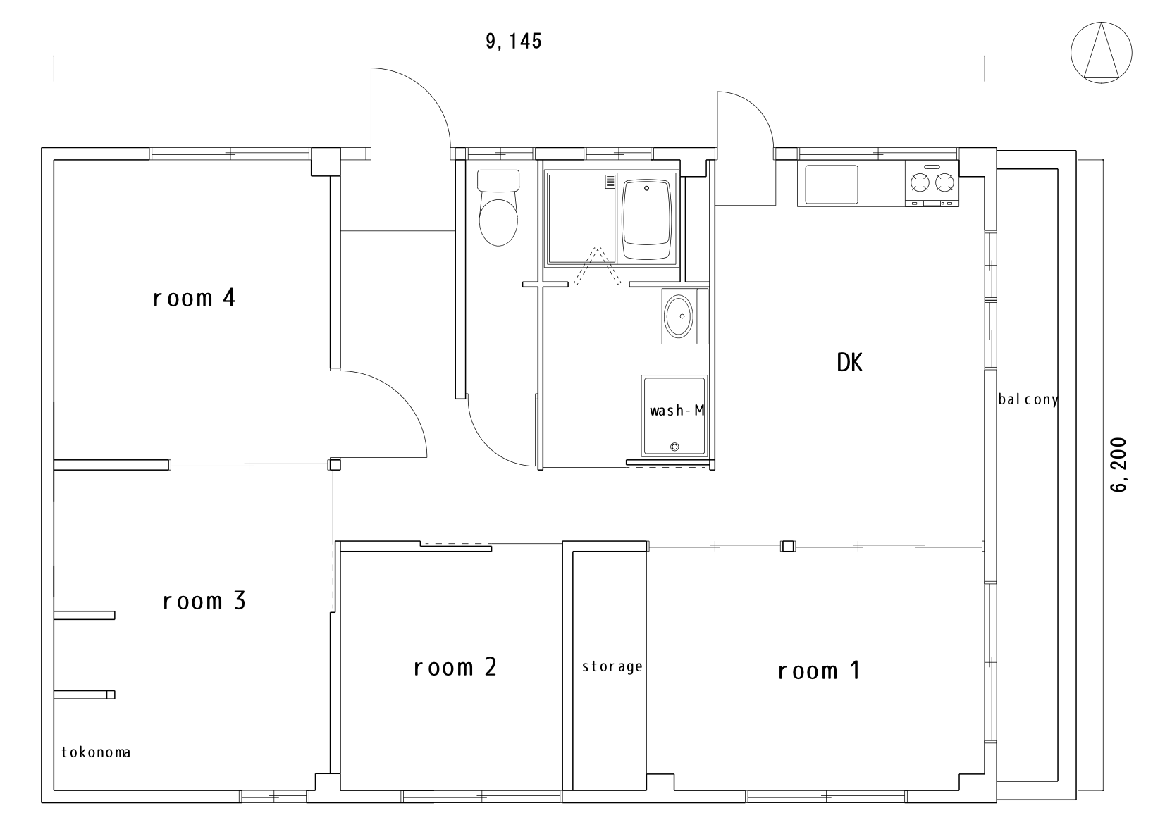
窓の向こうに海が見えると、つい立ち止まってしまいます。坂を上ってきた疲れもリセットされるような眺めが、窓いっぱいに広がっていました。 室内には、オーナーが各地の古民家から集めてきた様々な建具が、部屋ごとに使われています。揃いすぎていないところが、この家らしさ。床材も部屋ごとに異なり、和室には床の間も残されています。 4DKという間取りですが、襖を外してDKと隣室をつなげれば、ひとつながりの空間に。西側の部屋も同じように使えます。使い方に合わせて区切ったり、つなげたり。間取りを固定しすぎない余白があり、外した建具を置いておけそうなスペースもきちんと確保されています。 このマンションには、共用の屋上もあります。 以前住んでいたフォトグラファーの方は、毎日のように屋上に上がっていたそうで、時間帯や天候、季節ごとに移ろう風景を収めた写真をいただきました。ただ、少し外に出て、空と街を眺める場所がある。それだけで、暮らしのリズムが変わりそうな気がします。 坂の上に建つため、駅からの道のりは正直に言って楽ではありません。不動産広告上は80m=1分で計算するので徒歩8分表記ですが、実際にはGoogleマップで登りは徒歩14分ほど。ただ、その坂を越えた先に、この眺めがあります。シャッター付きの車庫には空きがあります。 水まわりはリニューアルされていて快適に使えそうで、インターネットも無料。 住まいとしてはもちろん、住みながら仕事をする人、アトリエや小さな事務所を構える人にも想像が広がる一室です。 急坂と引き換えに得られる景色と、集められてきた味のある建具たち。その先の暮らしに、思いを馳せることができる部屋です。 |
![]() |
|
| 共用の屋上でほっと一息つける暮らしって、素敵じゃないでしょうか。 |
|
| 部屋ごとに違う表情を見せる、各地の古民家から集められた建具たち |
|
| 床の間のある、落ち着いた和室 |
|
| バルコニーからの抜け感のある眺望 |
|
|
| >>大きな地図で見る  |
| 賃料 | 8万円 | 専有面積 | 56.70㎡ |
| 敷金 | 1ヶ月 | 礼金 | なし |
| 償却 | なし | 管理費 | なし |
| 所在地 | 神戸市東灘区住吉山手 | ||
| 交通 |
阪急電鉄神戸線「御影」駅 徒歩8分 阪急電鉄神戸線「御影」駅 バス5分 「甲南医療センター前」バス停 徒歩2分 |
||
| 建物構造 | 鉄筋コンクリート造 4階建て | 所在階 | 2階 |
| 築年 | 1969年 | 取引態様 | 媒介 |
| 設備 | 給湯器/ガスキッチン/ユニットバス/シャワートイレ/洗面台独立/洗濯機置場/エアコン1機/インターネット無料(JCOM 320MB Wi-Fi) | ||
| 備考 | ペット不可/エレベーターなし/鍵交換代:2.2万円/退去時ハウスクリーニング代5.5万円/解約告知:2カ月前/短期解約違約:1年未満総家賃1カ月・6カ月未満総家賃2カ月/水道代個別契約/シャッター付車庫1台空きあり(大型車、ハイルーフ不可(高さ約1,870mm以下)):月額2万円/成約時仲介手数料(成約賃料1ヶ月分相当額+消費税)/要保証会社加入/住居兼事務所可 | ||
| 情報修正日時 | 2026年1月26日 | 情報更新予定日 | 2026年2月10日 |
あなたにおすすめの物件


