|
|
|
||||||||||||||||||
剥き出し断熱スタイル |
||||||||||||||||||||
|
||||||||||||||||||||
|
||||||||||||||||||||
|
||||||||||||||||||||
|
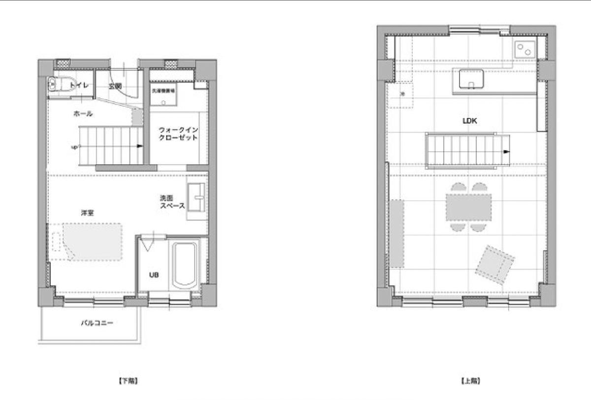
剥き出しのコンクリート壁、木天井と白い壁、アイアンのフェンスなど様々なマテリアルがバランス良く作られ、渋い家具を置くだけでも画になる空間。そして住みやすさも考慮した断熱性という一見相反しそうな要素が上手にまとめられた当物件。 昔ながらの団地の1部屋をリノベーション。メゾネットタイプなのもチャームポイント。無意識かもしれませんが上下階で暮らしのオンオフが作られるように思います。 間取りは広いLDK+寝室+ウォークインクローゼットと1〜2人用の仕様に変更。水回り設備も刷新し、1Fの洗面周りなんかはグッとくるかっこよさ。あと、メゾネットタイプの団地の階段は狭くて急な部分が課題でしたが、掛け替えを行って上り下りがしやすくなっているのもうれしい。 躯体のコンクリートを部分的に見せつつも清潔感が漂います。2Fの階段周りに設置されたアイアンフェンスも工夫次第で見せる収納にもなりそう。断熱対策と2重窓で気密性も高いので、売主様曰くシーリングファンとエアコン1台で全館空調もできそうです、とのこと。 物件は明石市の松ヶ丘。明舞団地をはじめ団地が多く並ぶエリアです。最寄りはJR「朝霧」駅でバス利用が便利な場所、便数も多いので使いやすいのと思います。神戸はもちろん大阪も通勤圏内。生活施設は駅周りにあったり、少し足を伸ばして大蔵海岸周辺にも商業施設があります。駐車場がリーズナブルなのもポイントです。 コンクリ剥き出しの表情はほんとたまりません。この部屋でそれぞれのマテリアルを愛でながら、自分スタイルの暮らしを作ってみませんか? |
![]() |
|
| 2F部分のLDK |
|
| 木天井に部分的なコンクリート現しがGOOD |
|
| キッチン側から |
|
| 陽も差し込みます |
|
|
| >>大きな地図で見る  |
| 価格 | 1,280万円 | 専有面積 | 57.41㎡ |
| 管理費 | 5,000円 | 修繕積立金 | 13,000円 |
| 所在地 | 明石市松が丘1丁目 | ||
| 交通 |
JR山陽本線「朝霧」駅 徒歩24分 JR山陽本線「朝霧」駅 バス10分 「松が丘小学校前」バス停 徒歩5分 |
||
| 建物構造 | 鉄筋コンクリート造 5階建て | 所在階 | 2階 |
| 築年 | 1968年 | 土地権利 | 所有権(敷地権:1/290) |
| 敷地面積 | 22,464.26㎡ | 都市計画 | 市街化区域 |
| 用途地域 | 第一種中高層住居専用地域 | 建蔽率/容積率 | |
| その他費用 | 取引態様 | 媒介 | |
| 設備 | 電気/都市ガス/水道/駐輪場有(無料)/2025年フルリノベーション | ||
| 備考 | ペット不可/施工会社:兵庫県住宅供給公社/管理会社:株式会社兵庫県公社住宅サービス/管理形態:日勤/現況:空室/引渡時期:相談/現状有姿取引/公簿取引/自治会費(月額200円)/ご成約時に仲介手数料〔(税抜成約売買価額×3%+6万円)+消費税〕を申し受けます。/バイク置場あり/駐車場あり(月額4000円) | ||
| 情報修正日時 | 2026年2月11日 | 情報更新予定日 | 2026年3月19日 |
あなたにおすすめの物件


