|
|
|
||||||||||||||||||
旅路の先、その世界線 |
||||||||||||||||||||
|
||||||||||||||||||||
|
||||||||||||||||||||
|
||||||||||||||||||||
|
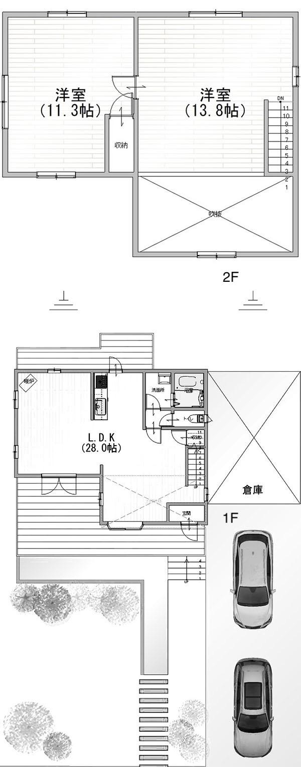
神戸市内や大阪市内から車で約1時間。 ここは三田市母子(もうし)。地図で見ると、ほとんど篠山といった場所です。 神戸市内からのドライブ途中、青野ダムサイド公園には「UNBY GENERAL GOODS STORE SANDA」があり、キャンプギアがずらり。アウトドア家具や調理グッズはログハウスでも活躍してくれそうです。釣りができるスポットや水遊びができる噴水エリアも整備されていて、家族みんなで楽しめますね。 青野川上流の風光明媚な「尼ン滝」でマイナスイオンをたっぷり浴びたら、目的地はもうすぐ。私の住む灘区からだと、気づけば1時間ほどで到着していました。 400㎡を超えるゆったりとした敷地には、自家菜園もできるガーデニングスペース、標高約500mの高原の風が心地よいウッドデッキ、薪や道具を置ける倉庫など、別荘ライフを彩る設備が充実。自然に囲まれて、ペットと過ごす休日も良さそうです。 1階は28帖のLDKと水まわり。 玄関スペースは吹き抜けになっていて、自然と人が集まってくる間取りです。ダイニングには暖炉もあり、冬には山小屋のような雰囲気に。 「一年中、キャンプを楽しみたい」―そんなご家族にもぴったりです。 築24年のログハウス、まだまだ「丈夫で長持ち」といきたいところ。経年による味わいを残しながら、ログハウス専門業者など、専門知識のある方に相談しながら現状を把握し、計画的に手を入れていくことで、長く快適に住むことができます。 物件の内見というより、小さな旅のつもりで、車を走らせてみてください。その1時間も、ログハウスの暮らしの一部です。 自宅からの道のり、ここで迎える朝や夜。 次の春には近くにある「花のじゅうたん」で一面のシバザクラを。拠点を持つことで広がる、新しい時間の流れを楽しんでみてください。 |
![]() |
|
| ログハウスには暖炉が似合う |
|
| キッチン |
|
| 玄関の吹き抜け、開放感あり |
|
| ウッドデッキ、緑に囲まれて |
|
|
| >>大きな地図で見る  |
| 価格 | 1,780万円 | 建物面積 | 99.63㎡ |
| 管理費 | なし | 修繕積立金 | なし |
| 所在地 | 三田市母子 | ||
| 交通 | JR福知山線 バス41分 「上母子」バス停 徒歩4分 | ||
| 建物構造 | 木造/ルーフィング葺 2階建て | 所在階 | |
| 築年 | 2001年 | 土地権利 | 所有権 |
| 敷地面積 | 433.41㎡ | 都市計画 | 調整区域 |
| 用途地域 | 建蔽率/容積率 | 50%、100% | |
| その他費用 | 取引態様 | 媒介 | |
| 設備 | 上水道/本下水/電気/プロパンガス | ||
| 備考 | ペット可/現況:空室/引渡時期:相談/三田市山並み・田園景観計画区域/現状有姿取引/売主の契約不適合責任免責/成約時仲介手数料〔(成約売買価額×3%+6万円)+消費税〕/バイク置場あり/駐車場あり(3台分(車種による)) | ||
| 情報修正日時 | 2025年12月8日 | 情報更新予定日 | 2025年12月26日 |
あなたにおすすめの物件


