|
|
|||||||||||
諏訪山モダニズム |
||||||||||||
|
||||||||||||
|
||||||||||||
|
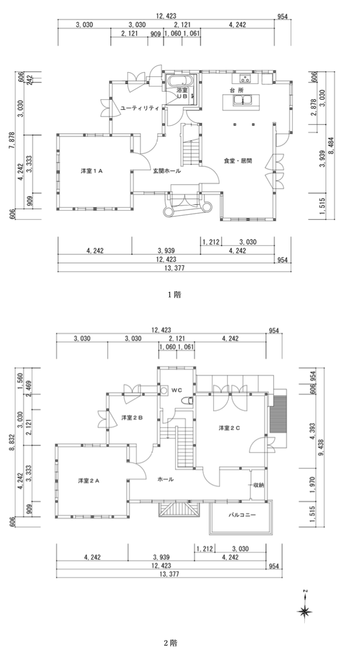
文化財指定の異人館が、まさかの賃貸募集。 年月を重ねても色褪せない、クラシックでどこか気品のある佇まい。扉を開けた瞬間、思わず足が止まりました。 諏訪山の麓に今も残る洋館。 以前は売買で募集されていましたが、古いものに理解のあるアンティークショップオーナーの手に渡り、丁寧な改修を経て、このたび再び息を吹き返しました。 オリジナルの木製建具や窓、細部まで意匠の凝らされたディテールは、できる限り当時のまま。 高い天井、木製サッシ、床材に至るまで、もはやそれ自体がアンティーク。当時の丸窓も健在で、90年を超える歳月が建物の価値として積み重なっています。一方で、キッチンや浴室、トイレなどの水まわりはきちんと整備され、日常使いへの配慮もなされています。 海と山が近い、いかにも神戸らしい立地。 高台に建つため眺望は良好で、ビルの隙間からは海、背後にはすぐ山の気配。かつて西洋人たちがこのエリアを選んだ理由に、なんだか納得します。 なかでも印象的なのが、2階のホール。 木製建具が連なる窓辺は、この家いちばんの特等席。ベンチを置いてお茶を淹れれば、外のカフェに出かける理由がなくなってしまいそう。 「神戸=異人館」というイメージを持つ方は多いと思いますが、賃貸での募集は極めて稀。しかも現実的な賃料で出てくることは、ほとんどありません。 一点、立地について。 建物までは車の入れない階段状の急坂を上る必要があります。なお、徒歩約5分の場所に、屋根付きの月極駐車場を1台分確保しています(月額31,000円)。ただし、駐車場へは一度坂を下った後、別の急坂を上る必要があります。 また、土砂災害警戒区域(急傾斜地の崩壊)に指定されており、建物へ至る道沿いや建物裏の擁壁には、老朽化により表面が崩れている箇所や亀裂箇所が見受けられます。 店舗などの事業利用はできませんが、部屋数に余裕があるため、自宅で仕事をされる方にも向いていそうです。 古いもの好きには堪らない物件。この洋館の価値を理解し、大切に住み継いでくれる方に出会えたらと思います。基本的には賃貸での募集となりますが、価値観の合う方であれば、売買についてもご相談可能です。 ※2月2日(月)より内覧を開始します。 ※4月下旬竣工予定、入居時期は要相談となります(即入居はできません)。 |
![]() |
|
| 丸窓や建具のデザインに魅了される |
|
| 木製建具が連なる2階ホールの窓辺は、この家いちばんの特等席 |
|
| 窓すら絵になる |
|
| 思わず立ち止まって、見とれてしまった白亜の外観 |
|
|
| >>大きな地図で見る  |
| 賃料 | 建物面積 | 161.31㎡ | |
| 敷金 | 1ヶ月 | 礼金 | 2ヶ月 |
| 償却 | なし | 管理費 | なし |
| 所在地 | 神戸市中央区諏訪山町 | ||
| 交通 |
神戸市営地下鉄西神・山手線「県庁前」駅 徒歩10分 JR東海道本線「元町」駅 徒歩15分 |
||
| 建物構造 | 木造瓦葺 2階建て | 所在階 | |
| 築年 | 1933年 | 取引態様 | 媒介 |
| 設備 | 電気/都市ガス/上・下水道/給湯 | ||
| 備考 | ペット相談可(猫不可、犬は犬種による)/登録有形文化財(建造物)/土砂災害警戒区域(急傾斜地の崩壊)/竣工予定:4月下旬/入居時期:要相談/事業利用不可/民泊・シェアハウス不可/近隣月極駐車場(月額31,000円)/成約時仲介手数料(成約賃料1ヶ月分相当額+消費税)/要保証会社加入/要火災保険契約 | ||
| 情報修正日時 | 2026年1月26日 | 情報更新予定日 | 2026年4月2日 |
あなたにおすすめの物件



