|
|
|
||||||||||||||||||||
デザインで織りなす住み良い暮らし |
||||||||||||||||||||||
|
||||||||||||||||||||||
|
||||||||||||||||||||||
|
||||||||||||||||||||||
|
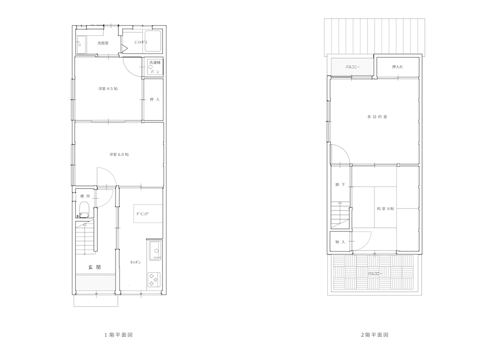
\\賃料変更となりました。// 高い天井と、潔く剥き出しになった梁が開放的な印象を与えるこの空間。意表をつくデザインに、思わず心がときめきました。 ソファやベッドを置いたり、レコードを並べて趣味の空間にしたり。 仕事したり、リラックスしたり。 思わず一日中籠もってしまいそうです。 独立型のキッチンってこぢんまりとした個室のよう。 お気に入りの調理器具や食器を並べてここもわたしらしい空間を創りたい。二人暮らしなら、ダイニングキッチンとしても使えそうなゆったり感です。 かつて和室だった面影を残す二間続きの洋室は、襖や障子が洋の空間に自然に馴染むようデザインされており、落ち着いた雰囲気を醸し出しています。一番奥には洗面所とお風呂が配置されています。奥行きのある長屋は湿気や寒さが気になりますが、脱衣所には浴室乾燥機(温風・乾燥・送風機能)が完備されていて快適に使えそうです。 玄関からすぐの階段を上がり、襖を開けると、まっさらな畳の香りが漂う和室も。大きめのバルコニーにはウッドパネルが敷かれ、洗濯物を干すだけでなく、さまざまな楽しみ方ができそう。 ご家族でももちろん十分な広さですし、ゆったり二人で暮らすのも良さそうです。 阪神尼崎駅から徒歩10分ほど。 家の前の小さな路地を抜けると国道2号線の両脇に大きなビルが立ち並び風景が一変します。都市の街並みのなかにも川が流れ大きな空が広がっていて、川の脇の遊歩道沿いにはみどりが茂る公園もあって、気持ちよく駅までの道のりを歩きました。 阪神尼崎駅は特急の停車駅。大阪梅田まで8分、神戸三宮まで24分と通勤にももちろん便利。下町情緒溢れる商店街も活気があってお買い物も楽しそうです。 美しくデザインされた家。 あなたはどんな暮らしをデザインしますか? |
![]() |
|
| 外観もカッコよく。 |
|
| 二間つづきの落ち着いた空間 |
|
| 統一された障子、襖、床のデザイン |
|
| 二階には和室も |
|
|
| 賃料 | 9万4,000円 | 専有面積 | 70.02㎡ |
| 敷金 | 1ヶ月 | 礼金 | 1ヶ月 |
| 償却 | なし | 管理費 | 5,000円 |
| 所在地 | 尼崎市西大物 | ||
| 交通 |
阪神電鉄本線「尼崎」駅 徒歩10分 阪神電鉄本線「大物」駅 徒歩7分 |
||
| 建物構造 | 木造 2階建て | 所在階 | |
| 築年 | 1987年 | 取引態様 | 媒介 |
| 設備 | 電気/ガス/上下水道 | ||
| 備考 | ペット相談可(単頭飼(以上は要相談))/定期借家契約(再契約:相談)/家賃保証会社加入要(Casa)保証会社利用料:初回保証料50% 月額サービス料1,300円 決済手数料月額300円(家財保険込)/前面道路際に駐輪可能/仲介手数料要(成約賃料1ヶ月分相当額+消費税10%) | ||
| 情報修正日時 | 2025年10月15日 | 情報更新予定日 | 2026年3月27日 |
あなたにおすすめの物件


