|
|
|
||||||||||||||||||
光と凪の180℃ |
||||||||||||||||||||
|
||||||||||||||||||||
|
||||||||||||||||||||
|
||||||||||||||||||||
|
温かい朝の光が差し込む。 部屋の空気と静まり返った海面が優しく重なる。 その景色を、180℃。 そして24時間、暮らしにそばに。 海と平行に走る線路。 列車に揺られながら、須磨から垂水、そして明石方面へ向かう途中。 「塩屋」らしいこのあたりの車窓風景を眺めるのが好きな方も多いのではないでしょうか。 塩屋は海と山に囲まれた神戸で、もっとも海と山が近いエリアのひとつ。細い路地や坂道が入り組む。漁港や商店街の営みが今も息づき、利便性が高いとは言い難いけど、人の心を惹きつけて離さない、どこか懐かしさを残す、小さなまちです。 駅を降り、2号線沿いを東へ。 ゆったりとした敷地に戸建が点在する、落ち着いた住宅エリア。希少性の高い立地に佇むリノベーション素材の中古戸建をご紹介します。 現状、床や柱にはシロアリ被害があり、雨漏り箇所も確認されています。設備はすべて交換前提です。 それでも光と海とともに暮らす住まいを、一から描けるポテンシャルがあります。 理想の住まいを、この場所で創り上げてください。 ※シロアリ被害については売主にて修繕予定です。 |
![]() |
|
| 窓の外に映る青。 |
|
| 玄関戸を開けて一歩目でこの景色に出会う。そんな1日の始まり |
|
| 外観。線路脇に佇んでいます。 |
|
| 全体的に改修が必要なようです。 |
|
|
| >>大きな地図で見る  |
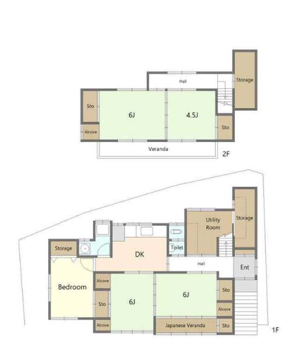
| 価格 | 1,580万円(税込) | 建物面積 | 81.88㎡ |
| 管理費 | なし | 修繕積立金 | なし |
| 所在地 | 神戸市垂水区塩屋町 | ||
| 交通 |
JR神戸線「塩屋」駅 徒歩8分 山陽電鉄本線「山陽塩屋」駅 徒歩9分 |
||
| 建物構造 | 木造 2階建て | 所在階 | 2階 |
| 築年 | 1961年 | 土地権利 | 所有権 |
| 敷地面積 | 132.23㎡ | 都市計画 | 市街化区域 |
| 用途地域 | 第一種低層住居専用地域 | 建蔽率/容積率 | 50%/100% |
| その他費用 | 取引態様 | 媒介 | |
| 設備 | プロパンガス/電気/上下水道 | ||
| 備考 | ペット可/現況:空室/引渡時期:相談/接道:南側2.6m 私道 接面13.0m /現状有姿取引/土砂災害警戒区域/増築未登記あり(建築確認無し、現状渡し)/原則再建築不可(建築基準法第43条の但し書き許可の上、再建築可能)/ご成約時に仲介手数料〔(税抜成約売買価額×3%+6万円)+消費税〕を申し受けます。 | ||
| 情報修正日時 | 2026年2月19日 | 情報更新予定日 | 2026年3月11日 |
あなたにおすすめの物件


