|
|
|
||||||||||||||||||||
路地奥にひっそり平屋 |
||||||||||||||||||||||
|
||||||||||||||||||||||
|
||||||||||||||||||||||
|
||||||||||||||||||||||
|
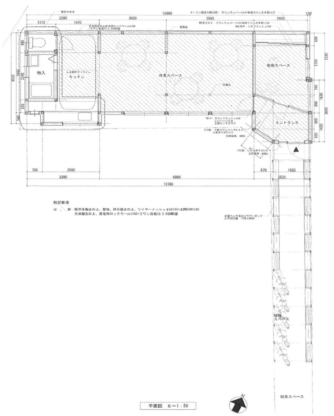
細い路地の先にひっそりと佇む、愛らしい小さな平屋を見つけました。アプローチにはベンチ付きのパーゴラがあり、藤やブドウの蔦で緑いっぱいに彩りたくなります。 令和5年にリノベーションされ、土間仕上げの床とグレーの壁、ラワン合板の天井に露出した梁が特徴的な空間。木製の建具やレトロなすりガラスの窓、そして昔懐かしいタイルの水回りも素敵です。 物販店や小さなカフェ、オフィスとしての利用にいかがでしょうか。土間仕上げのため、住居としての使用には不向きかもしれません。 阪急六甲駅からは、沿線沿いを少し進むとあっという間に到着。すぐ近くには今も薪で炊かれている「ふじ温泉」があり、仕事終わりにひと風呂浴びてから帰るのも至福のひととき。 六甲駅周辺にはパン屋やスイーツ店、カフェ、雑貨屋など、魅力的な個人店が点在し、落ち着いた住宅街ながらも程よい活気が漂います。 隠れ家のような空間でお店や事務所を構えたいと考えていた方には、ぜひご覧いただきたい一軒です。 |
![]() |
|
| 土間仕上げの床と、露出した梁が魅力のリノベーション平屋 |
|
| 事務所や物販店、小さなカフェなどにいかがでしょうか |
|
| 個室は会議や撮影などにもお使いいただけそうです |
|
| 木製建具が素敵なエントランス |
|
|
| >>大きな地図で見る  |
| 賃料 | 13万円 | 建物面積 | 41.91㎡ |
| 敷金 | なし | 礼金 | 2ヶ月 |
| 償却 | なし | 管理費 | なし |
| 所在地 | 神戸市灘区篠原中町 | ||
| 交通 | 阪急電鉄神戸線「六甲」駅 徒歩5分 | ||
| 建物構造 | 木造/瓦葺平家建 | 所在階 | |
| 築年 | 1942(推定)年 | 取引態様 | 媒介 |
| 設備 | 電気/上下水道/都市ガス | ||
| 備考 | 現況:空室/引渡時期:相談/賃貸保証会社加入要/仲介手数料要(成約賃料1ヶ月分相当額+消費税10%)/1階・路面/飲食店可/要火災保険契約 | ||
| 情報修正日時 | 2026年2月19日 | 情報更新予定日 | 2026年3月7日 |
※掲載の情報が現状と異なる場合には、現状を優先するものとします。
あなたにおすすめの物件


