|
|
|||||||||||||||||||
ご褒美を毎日 |
||||||||||||||||||||
|
||||||||||||||||||||
|
||||||||||||||||||||
|
||||||||||||||||||||
|
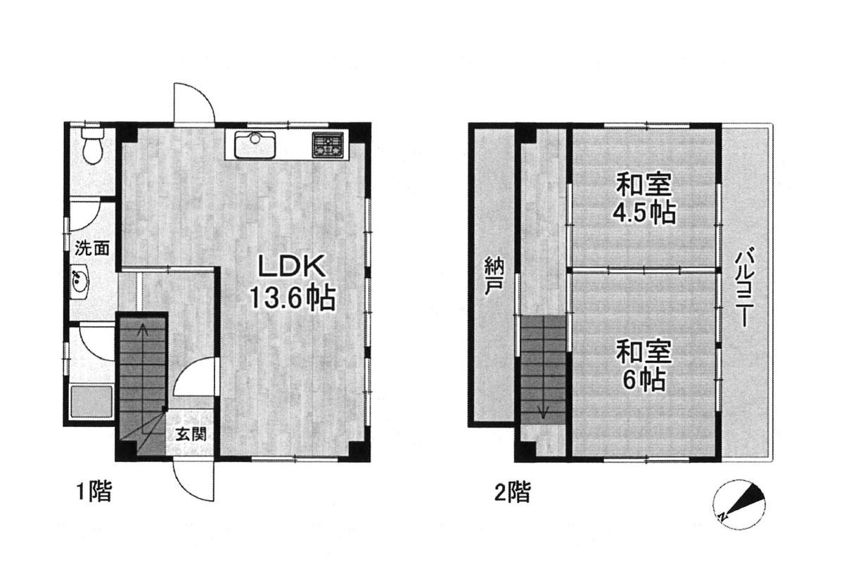
見下ろす街並みと海と島、現地の迫力は思っていた以上でした。朝目覚めてバルコニーに出て、この景色とコーヒー片手に今日の予定を考える…それだけでも毎日が少し良くなるようなご褒美のような眺望。 物件は西舞子エリアの坂の上、徒歩だとちょっとしんどい坂が続きますがその代わりに特別な眺望が魅力。斜面地に建つ物件ですが、こぶりなRC造かつリーズナブルな価格もうれしい。 室内はリフォームされていて、防水塗装も完了していますのですぐに住み始めることができます。 間取りは2LDKで1〜2人向けでしょうか。白を基調に清潔感もあり、レトロな建具や配管がちょっとしたアクセントになっていて良い感じ。水回り設備も綺麗な状態です。こぶりな洗面周りは個人的推しポイント。 2Fの和室2間も清潔感があり、何より室内からの眺望もGOOD。晴れの日も雨の日も、夜景も楽しみになっちゃいます。あと玄関周りの段々スペースに好きな植栽を並べたりして楽しみたい、そこからふと見える海や橋の風景も良いんです。 駅まで徒歩圏内ですが、帰りはそれなりの坂道なのでご注意を。駐車場はありませんので近隣確保になります。近所には大歳山遺跡があったり、駅周辺に生活施設は充実しています。 神戸R不動産定番とも言える「ちょっと坂道しんどいけどその代わりの眺望すごい」物件。エリア、価格ともハードル低めかと思いますのでこの機会にぜひ! |
![]() |
|
| 夜もいい |
|
| RC造なんです |
|
| 1FのLDK |
|
| 建具はレトロ |
|
|
| >>大きな地図で見る  |
| 価格 | 680万円 | 建物面積 | 70.18㎡ |
| 管理費 | なし | 修繕積立金 | なし |
| 所在地 | 神戸市垂水区西舞子 | ||
| 交通 | 山陽電鉄本線「西舞子」駅 徒歩16分 | ||
| 建物構造 | 鉄筋コンクリート造 2階建て | 所在階 | |
| 築年 | 1977年 | 土地権利 | 所有権 |
| 敷地面積 | 62㎡ | 都市計画 | 市街化区域 |
| 用途地域 | 第一種低層住居専用地域 | 建蔽率/容積率 | |
| その他費用 | 取引態様 | 媒介 | |
| 設備 | 電気/都市ガス/上下水道/駐車場無 | ||
| 備考 | ペット可/地目:宅地/私道負担:有/総戸数:1戸/現況:空室/引渡時期:相談/R6年5月リフォーム:屋上防水、クロス張替、CF張替、トイレ、浴室、洗面新調、外壁塗装、給湯器交換/契約不適合責任免責(土地・建物)/設備の修復義務免責/境界非明示取引/公簿取引/私道面積47.06平米メートルは前面道路負担部分と本物件西側階段部分一部面積になります。/成約時仲介手数料〔30万円+消費税〕 | ||
| 情報修正日時 | 2026年2月8日 | 情報更新予定日 | 2026年4月18日 |
あなたにおすすめの物件


