|
|
|||||||||||||||||||
街と海のあいだで暮らす。 |
||||||||||||||||||||
|
||||||||||||||||||||
|
||||||||||||||||||||
|
||||||||||||||||||||
|
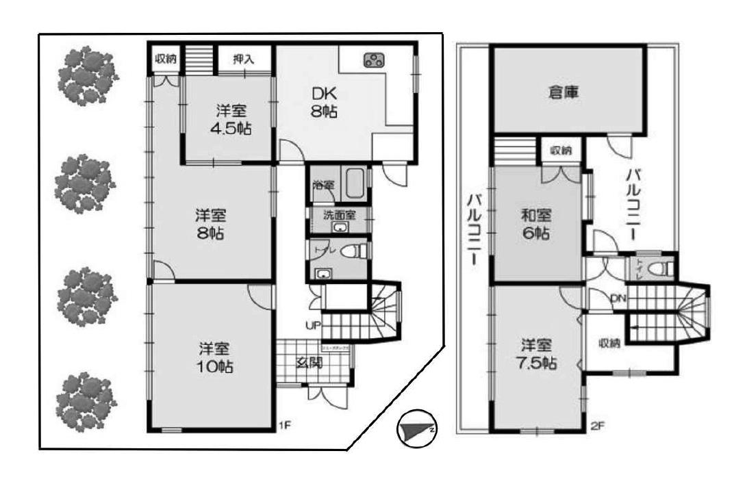
当物件の場所は明石市松ヶ丘エリア。海と街のあいだ、ゆるやかな高台に広がる落ち着いた住宅地です。このエリアは明石市内でも“成熟した住宅街”のような場所で、区画が整い道路幅にもゆとりがあるのが特徴。建て替えやリフォームを経ながら丁寧に住み継がれてきた街並みには、時間がつくった安心感があります。 室内はどこか懐かしさを感じる1970年代の設え。板張りの壁やゆとりあるリビング、整った5LDKの間取り。派手さはないけれど十分な広さがあって、家族それぞれの居場所を確保できる構成です。 リノベーションを前提に素材として楽しむのもよし。このまま手を入れながら住み継ぐのもよし。RC造ならではの安心感もあってベースとしてのポテンシャルは十分。一部雨漏れの補修が必要ですが、メンテナンス次第でこれからも長く住み続けられると思います。 広めの庭もこの家のチャームポイント。道路から一段上がった位置にありほどよいプライベート感。植栽を整えれば家庭菜園や子どもの遊び場、犬との時間など、暮らしの幅が自然と広がりそう。掘り込み駐車場があるのも高台エリアでは嬉しいポイントです。雨の日も荷物の出し入れがしやすいですしね。 最寄りはJR朝霧駅・明石駅エリア。大阪方面へもアクセスしやすく通勤・通学圏として十分に現実的。駅まではバス利用が便利です。一方で、駅前の喧騒からは適度に距離を置き住宅地としての落ち着きを保っています。スーパーや医療機関、教育施設も生活圏内に揃い、日々の暮らしは想像以上にスムーズかと。人気の飲食店が点在していたり、これまた人気のオーガニックスーパーも近所にあったりします。 そして何よりこのエリアならではなのが「海との距離感」。少し歩けば明石海峡の景色が広がり休日には散歩やジョギング、釣りやビーチ沿いの時間を楽しむこともできる。観光地のような派手さではなく生活の延長にある海とかいいですね。静かで風通しの良い住環境をお探しのファミリー向けにおすすめの物件です。 |
![]() |
|
| 広々なお庭 |
|
| 広々なお庭 |
|
| 外観 |
|
| 日が差し込む1F洋室 |
|
|
| >>大きな地図で見る  |
| 価格 | 3,600万円 | 建物面積 | 183.63㎡ |
| 管理費 | なし | 修繕積立金 | なし |
| 所在地 | 明石市松が丘 | ||
| 交通 | JR山陽本線「朝霧」駅 徒歩19分 | ||
| 建物構造 | 鉄筋コンクリート造 2階建て | 所在階 | 1階 |
| 築年 | 1971年 | 土地権利 | 所有権 |
| 敷地面積 | 254.19㎡ | 都市計画 | 市街化区域 |
| 用途地域 | 第一種低層住居専用地域 | 建蔽率/容積率 | 50%/100% |
| その他費用 | 取引態様 | 媒介 | |
| 設備 | 電気/ガス/水道/駐車スペース(1F堀込車庫) | ||
| 備考 | ペット可/地目:宅地/私道負担:無/総戸数:1戸/現況:空室/引渡時期:相談/2F和室雨漏りあり/建物未登記(登記後引渡し)/現状有姿取引/公簿取引/境界非明示取引/売主契約不適合責任免責/設備補償無し/成約時仲介手数料〔(成約売買価額×3%+6万円)+消費税〕/バイク置場あり/駐車場あり | ||
| 情報修正日時 | 2026年2月6日 | 情報更新予定日 | 2026年3月26日 |
あなたにおすすめの物件


