|
|
|||||||||||||||||||||
眺めるアトリエ |
||||||||||||||||||||||
|
||||||||||||||||||||||
|
||||||||||||||||||||||
|
||||||||||||||||||||||
|
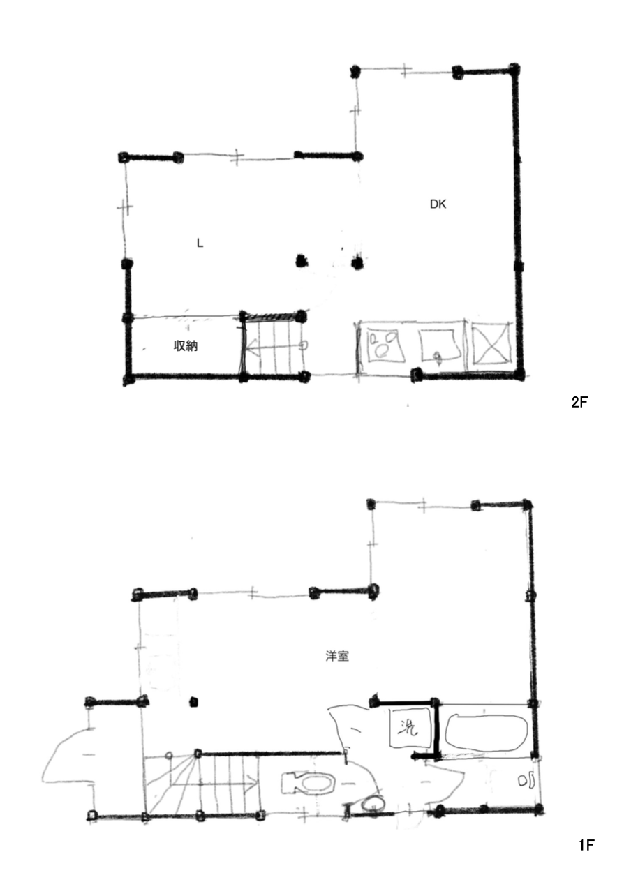
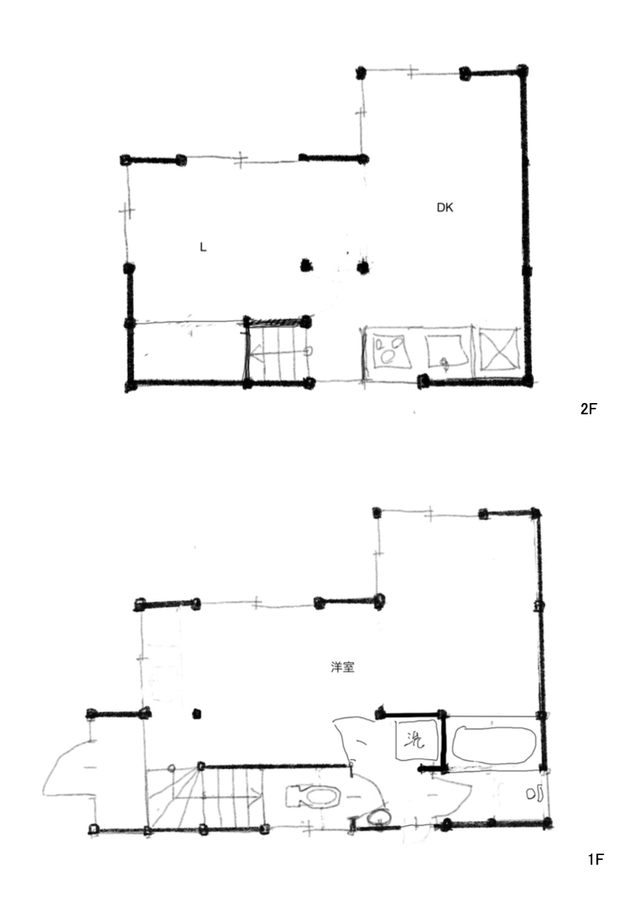
岡本の丘の上。見晴らしの良い高台の角地に建つレトロ戸建が、素敵にリノベーションされて募集開始です。 梁を現した高い天井。1階も2階も、壁一面の窓の先には抜けのある眺望が広がります。 視界がひらけているだけで、気持ちまで晴れやかになる空間です。 内装にも、こだわりが随所に。 左官仕上げの壁、木製の窓枠、無垢材の床。1階は幅広、2階は幅狭と、フロアごとに表情を変えているのも面白いところ。アイアンフレームに木製天板のキッチンは、主張しすぎず、それでいてしっかりとした存在感。 そして、目を引くのが左官仕上げの有機的な浴室。洞窟のような空間で、窓の先には洋室越しに神社の緑が借景として望めます。 洗面台は、ころんとしたコンパクトなタイプで、どこか懐かしさも。 間取りの使い方は、住む人次第。 僕だったら2階をダイニングキッチン、リビングを寝室に。1階をゆったりしたリビングに。あるいは1階をアトリエや作業場にして、住居兼アトリエ、事務所兼住居として使うのも想像が膨らみます。 ただし、駐車場はありません。近隣に月極もあまりなさそうなので、その点はご注意を。また、収納スペースも階段上の限られたスペースのみとなります。 日当たりのいい庭では、植物を育てたり、プランターで小さな畑をつくったり。眺めのある場所で、手を動かしながら暮らす。そんな日常が似合う一軒です。 |
![]() |
|
| 眺めと日当たり、どちらも気持ちいい。左官壁と無垢床の質感のいい空間。 |
|
| 窓一面に設えた木製窓の向こうに、抜けのある眺望 |
|
| アイアンフレームに木製天板のキッチン |
|
| 蔦がほどよく絡む外観 |
|
|
| >>大きな地図で見る  |
| 賃料 | 10万8,000円 | 建物面積 | 57.96㎡ |
| 敷金 | 1ヶ月 | 礼金 | 2ヶ月 |
| 償却 | なし | 管理費 | なし |
| 所在地 | 神戸市東灘区本山北町 | ||
| 交通 | 阪急電鉄神戸線「岡本」駅 徒歩13分 | ||
| 建物構造 | 木造瓦葺 2階建て | 所在階 | |
| 築年 | 1970年 | 取引態様 | 媒介 |
| 設備 | 電気/都市ガス/上下水道 | ||
| 備考 | ペット不可/1階:29.81㎡、2階:28.15㎡/第一種低層住居専用地域(事業のみの利用不可、住居兼事業利用は要相談)/成約時仲介手数料(成約賃料1ヶ月分相当額+消費税)/要家賃保証会社加入/要火災保険契約 | ||
| 情報修正日時 | 2026年1月24日 | 情報更新予定日 | 2026年3月27日 |
あなたにおすすめの物件


